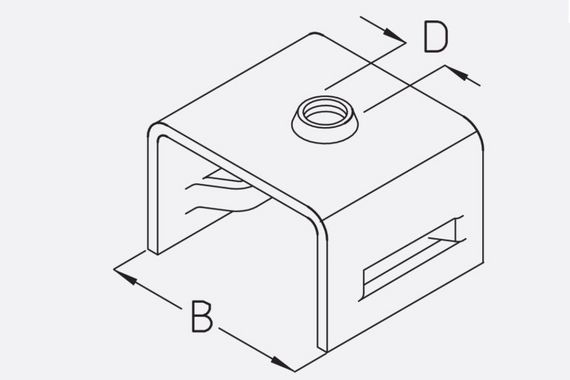
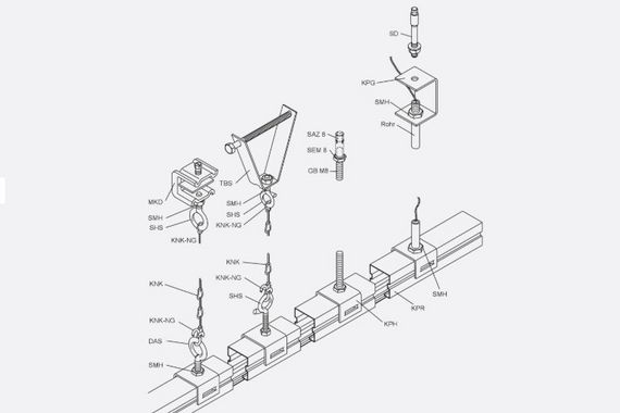
The holding clip KPH is pushed onto the KPR profile and can be freely positioned there. The suspension element is mounted on the retaining claw. The distance between supports must not exceed 6000 mm. The holding clip is made of hot-dip galvanised steel steel.








